Villa Unifamigliare in Vendita a Gorla Minore
Classe energetica
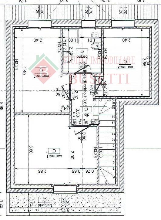
In zona tranquilla e ben servita adiacente il centro del paese è in corso la realizzazione di n.6 Ville Unifamigliari sviluppate su due livelli fuori terra, ovvero un piano terra ed un piano sottotetto con travi a vista sbiancate entrambi abitabili. Al piano terra è presente anche l’autorimessa Singola/Doppia. Ogni villa dispone di un giardino privato con il proprio accesso carraio. Le ville sono state progettate per ottimizzare lo spazio e l’organizzazione dei locali per uno stile di vita confortevole dove godere quotidianamente la propria libertà ed il proprio relax. Le unità godono di uno spazio en plein air: dal giardino privato dove godersi la bellezza di ogni stagione in intimità ad ampi balconi e terrazzi che consentono una fruizione dello spazio esterno in ogni stagione. Il progetto è caratterizzato da una forte identità architettonica. Una particolare attenzione nella scelta dei materiali destinati a durare nel tempo, è sinonimo di un investimento sicuro. Le unità abitative saranno ad alta efficienza energetica. E' garantita la classe energetica A4. La particolare attenzione dei dettagli caratterizza il cantiere, la cura dell' isolamento acustico, la coibentazione nonché i serramenti e le finiture, sono sinonimo di un comfort eccellente. I principali vantaggi di un’abitazione in classe A sono la stabilità delle temperature, l’assenza di spifferi e correnti, la produzione di energia da fonti rinnovabili. L' ingresso della villa "C" si apre su un notevole soggiorno ed una splendida cucina abitabile, un disimpegno ed un bagno completano la zona giorno al piano terra. Una comoda nonché ben rifinita scala interna collega la zona notte composta da tre camere di cui una matrimoniale con accesso ad un balcone ed un bagno. Adiacente l' abitazione uno spazioso box singolo con antistante un posto auto. La villa dispone di un giardino privato di 88 mq circa. Possibilità di personalizzare la propria dimora con la scelta delle finiture ed eventualmente, se possibile, con una diversa distribuzione degli spazi interni. La consegna è prevista per Dicembre 2026.
SI ACQUISTA DIRETTAMENTE DAL COSTRUTTORE SENZA ALCUNA SPESA DI INTERMEDIAZIONE
" Valutiamo gratuitamente il vostro usato proponendovi la giusta strategia per poter realizzare e gestire al meglio la compraVendita "
Contattaci
Studio Immobiliare Busetti
corso Magenta, 116
Legnano (MI)
Telefono 0331548925
Fax 0331574858
Cellulare 3488098731
info@studioimmobiliarebusetti.it
Immobili simili
Ultimo aggiornamento 30-10-2025


















































